Проект дома Фахверк 9.0х11.0-217 м²

Артикул: 20АК25-9.0х11.0-217 Площадь: от 200 м2 Этажей: двухэтажные
32 550 ₽

Описание проекта

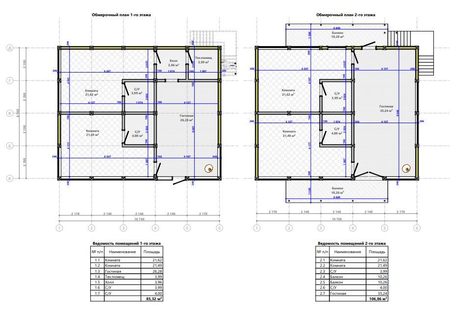
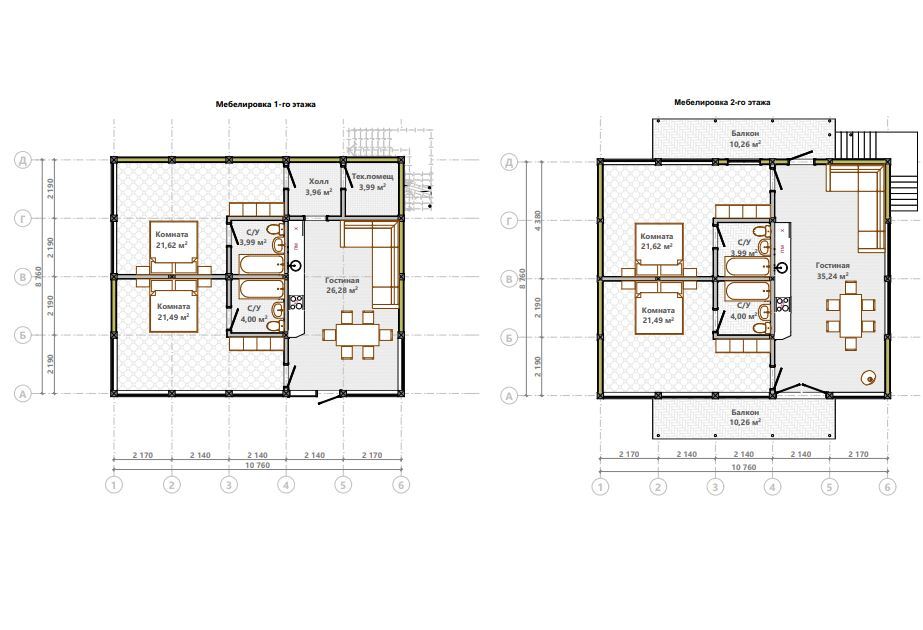
В состав проекта входит: 1.Конструктивный раздел 2.Распил пиломатериалов(файл bvn) 3. Визуализация проекта 4. 3d модель в формате bimx Данный проект был спроектирован для постоянного, круглогодичного проживания в Московской области. Комфортный, просторный и уютный, дом с панорамным остеклением, интересный и сложный проект, отлично подойдёт для большой семьи. В проекте реализованы все пожелания, которые только могут быть у большой обеспеченной семьи, данный дом украсит не только участок его владельца но и будет достоянием целого района, если вы хотите построить что-то по настоящему воодушевляющее, это ваш дом. Ориентировочная стоимость дома 9 900 000.

Характеристики

Категория: Проекты в стиле "Фахверк";Проекты двухэтажных домов" Площадь: от 200 м2 Этажность: двухэтажные Артикул: 20АК25-9.0х11.0-217
32 550 ₽
Купить проект

Нужна помощь?

Наши менеджеры всегда готовы ответить на ваши вопросы:

info@ecodom-project.ru

Рабочее время: Пн-Пт с 9:00 до 18:00