Проект Одноэтажного дома 8,5х11,8-123 м²

Артикул: 21КП02-ОС-8,5х11,8-123 Площадь: от 100 м2 до 200 м2 Этажей: одноэтажные
18 450 ₽

Описание проекта

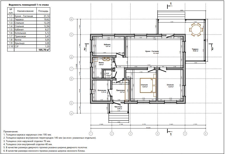
В состав проекта входит: 1.Конструктивный раздел 2.Эскизный раздел 3.3д модель дома в формате bimx 4.Раскрой пиломатериалов Данный проект был спроектирован как основной дом для постоянного проживания в Московской области. Комфортный стильный дом, отличная альтернатива квартире, удобный и комфортабельный, есть всё необходимое. Две спальни, котельная, кабинет, раздельный санузел, отличная альтернатива квартире. Ориентировочная стоимость дома 4 500 000.

Характеристики

Категория: Проекты одноэтажных домов Площадь: от 100 м2 до 200 м2 Этажность: одноэтажные Артикул: 21КП02-ОС-8,5х11,8-123
18 450 ₽
Купить проект

Нужна помощь?

Наши менеджеры всегда готовы ответить на ваши вопросы:

info@ecodom-project.ru

Рабочее время: Пн-Пт с 9:00 до 18:00