Проект Одноэтажного дома 6,0х9,0-58 м²

Артикул: 20УК01.00-ОС-6,0х9,0-58 Площадь: до 100 м2 Этажей: одноэтажные
8 700 ₽

Описание проекта

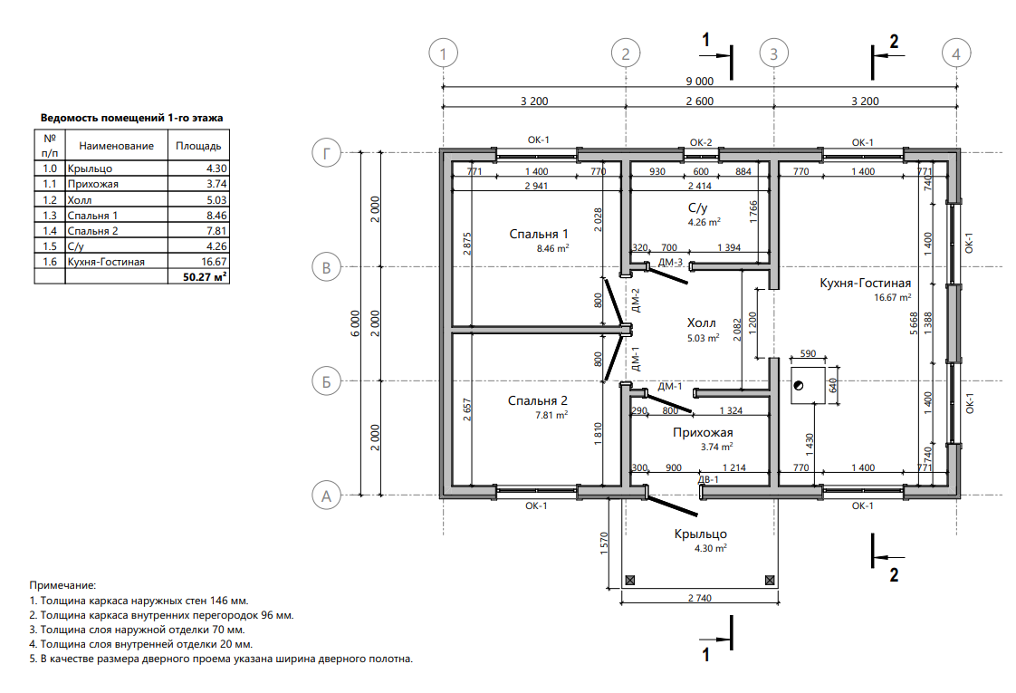
В состав проекта входит: 1.Конструктивный раздел Данный проект был спроектирован как основной дом для постоянного проживания в Республике Крым. Комфортный стильный дом, отличная альтернатива квартире, часто используют как гостевой домик или для инвестиций. Ориентировочная стоимость дома 2 700 000.

Характеристики

Категория: Проекты одноэтажных домов Площадь: до 100 м2 Этажность: одноэтажные Артикул: 20УК01.00-ОС-6,0х9,0-58
8 700 ₽
Купить проект

Нужна помощь?

Наши менеджеры всегда готовы ответить на ваши вопросы:

info@ecodom-project.ru

Рабочее время: Пн-Пт с 9:00 до 18:00