Проект Сауны - Хамам 6,0х7,5-45 м²

Артикул: 22АК11.00-ОС-6,0х7,5-45 Площадь: до 100 м2 Этажей: одноэтажные
6 750 ₽

Описание проекта

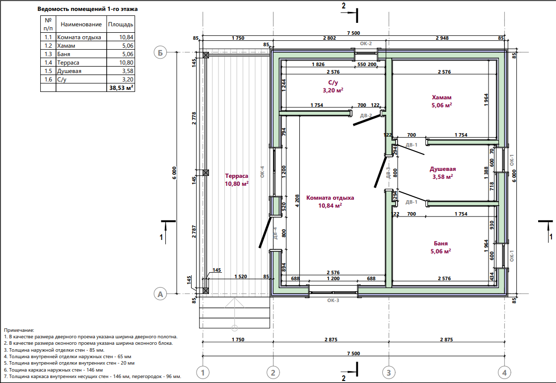
В состав проекта входит: 1.Конструктивный раздел 2.Распил пиломатериалов 3. Визуализация проекта 4. 3d модель в формате bimx Данный проект был спроектирован как дополнительная постройка к основному дому в Московской области. Отличный вариант гостевого домика на вашем участке. Комната отдыха вполне может служить спальней, после хорошего отдыха. Регулярно посещать свою баню и при этом размещать там гостей, очень удобно. В проекте отсутствует усиление лаг пола для размещения тяжёлых печей, а так же отсутствует в стропильной системе проходной элемент для трубы. Ориентировочная стоимость дома 1 800 000.

Характеристики

Категория: Бани Площадь: до 100 м2 Этажность: одноэтажные Артикул: 22АК11.00-ОС-6,0х7,5-45
6 750 ₽
Купить проект

Нужна помощь?

Наши менеджеры всегда готовы ответить на ваши вопросы:

info@ecodom-project.ru

Рабочее время: Пн-Пт с 9:00 до 18:00