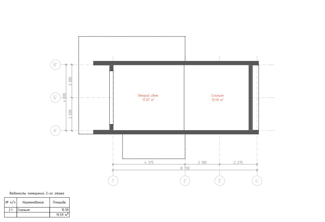
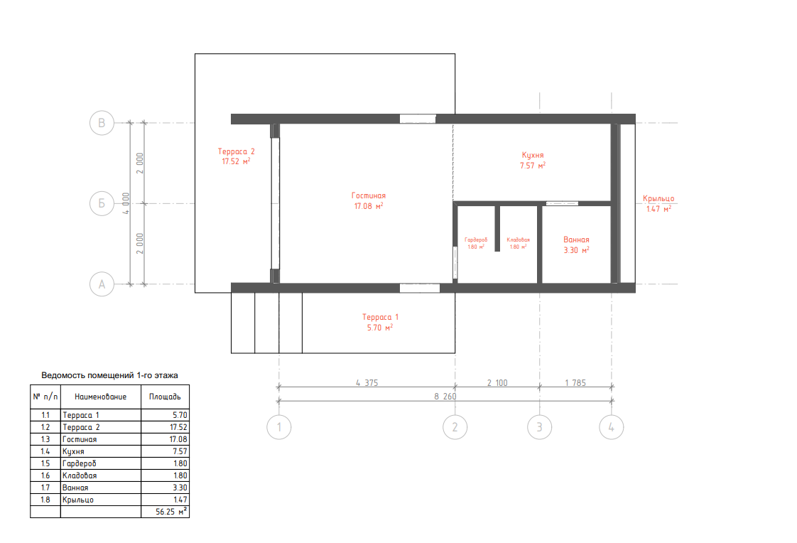
Проект БарнХауса со вторым светом и антресолью 4,0х8,0-50 м²

Артикул: 20АК12- 4,0х8,0-50 Площадь: до 100 м2 Этажей: двухэтажные
21 000 ₽

Описание проекта

В состав проекта входит: 1.Конструктивный раздел 2.Распил пиломатериалов 3. Визуализация проекта 4. 3d модель в формате bimx Данный проект был спроектирован как дом для постоянного проживания не большой семьи в Челябинской области. Комфортный шикарный дом в стиле БарнХаус, отличная альтернатива квартире. Бюджетный вариант. Реализовано панорамное остекление, терраса, большое пространство гостинной со вторым светом. спальная мансардная.Также проект отлично подойдёт как инвестиционное решение, для сдачи в аренду на выходные. Ориентировочная стоимость дома 3 000 000.

Характеристики

Категория: Проекты в стиле "Барнхаус";Проекты двухэтажных домов" Площадь: до 100 м2 Этажность: двухэтажные Артикул: 20АК12- 4,0х8,0-50
21 000 ₽
Купить проект

Нужна помощь?

Наши менеджеры всегда готовы ответить на ваши вопросы:

info@ecodom-project.ru

Рабочее время: Пн-Пт с 9:00 до 18:00