Проект Одноэтажной бани в стиле Барн 6,0х7,5-45 м² с террасой

Артикул: 20АК20.00-OC-6,0х7,5-45 Площадь: до 100 м2 Этажей: одноэтажные
6 750 ₽

Описание проекта

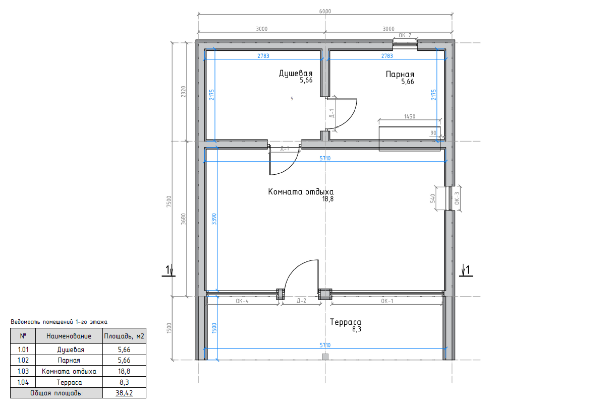
В состав проекта входит: 1.Конструктивный раздел 2.Распил пиломатериалов 3. Визуализация проекта 4. 3d модель в формате bimx Данный проект был спроектирован как Баня и гостевой дом в Московской области. Комфортный шикарная баня в стиле БарнХаус. Реализовано панорамное остекление, терраса, большое пространство комнаты отдыха. Также проект отлично подойдёт как инвестиционное решение, для сдачи в аренду на выходные. Ориентировочная стоимость дома 2 900 000.

Характеристики

Категория: Проекты в стиле "Барнхаус";Проекты одноэтажных домов;Бани" Площадь: до 100 м2 Этажность: одноэтажные Артикул: 20АК20.00-OC-6,0х7,5-45
6 750 ₽
Купить проект

Нужна помощь?

Наши менеджеры всегда готовы ответить на ваши вопросы:

info@ecodom-project.ru

Рабочее время: Пн-Пт с 9:00 до 18:00