Проект одноэтажного дома Фахверк 10,0х13,0-130 м²

Артикул: 20АК02-ОП-10,0х13,0-130 Площадь: от 100 м2 до 200 м2 Этажей: одноэтажные
19 500 ₽

Описание проекта

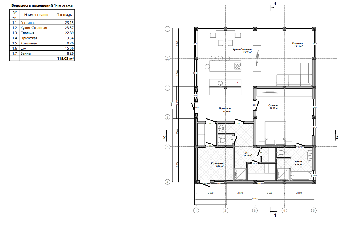
В состав проекта входит: 1.Конструктивный раздел 2.Распил пиломатериалов 3. Визуализация проекта 4. 3d модель в формате bimx Данный проект был спроектирован для постоянного, круглогодичного проживания в Московской области. Комфортный, просторный и уютный, дом с панорамным остеклением, отлично подойдёт для большой семьи. В проекте реализована большая кухня-гостинная, котельная. Ориентировочная стоимость дома 7 900 000.

Характеристики

Категория: Проекты в стиле "Фахверк";Проекты одноэтажных домов" Площадь: от 100 м2 до 200 м2 Этажность: одноэтажные Артикул: 20АК02-ОП-10,0х13,0-130
19 500 ₽
Купить проект

Нужна помощь?

Наши менеджеры всегда готовы ответить на ваши вопросы:

info@ecodom-project.ru

Рабочее время: Пн-Пт с 9:00 до 18:00