Проект каркасной бани 6,0х8,0-48 м²

Артикул: 20АК46-6,0х8,0-48 Площадь: до 100 м2 Этажей: одноэтажные
8 000 ₽

Описание проекта

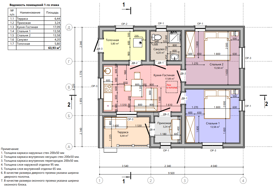
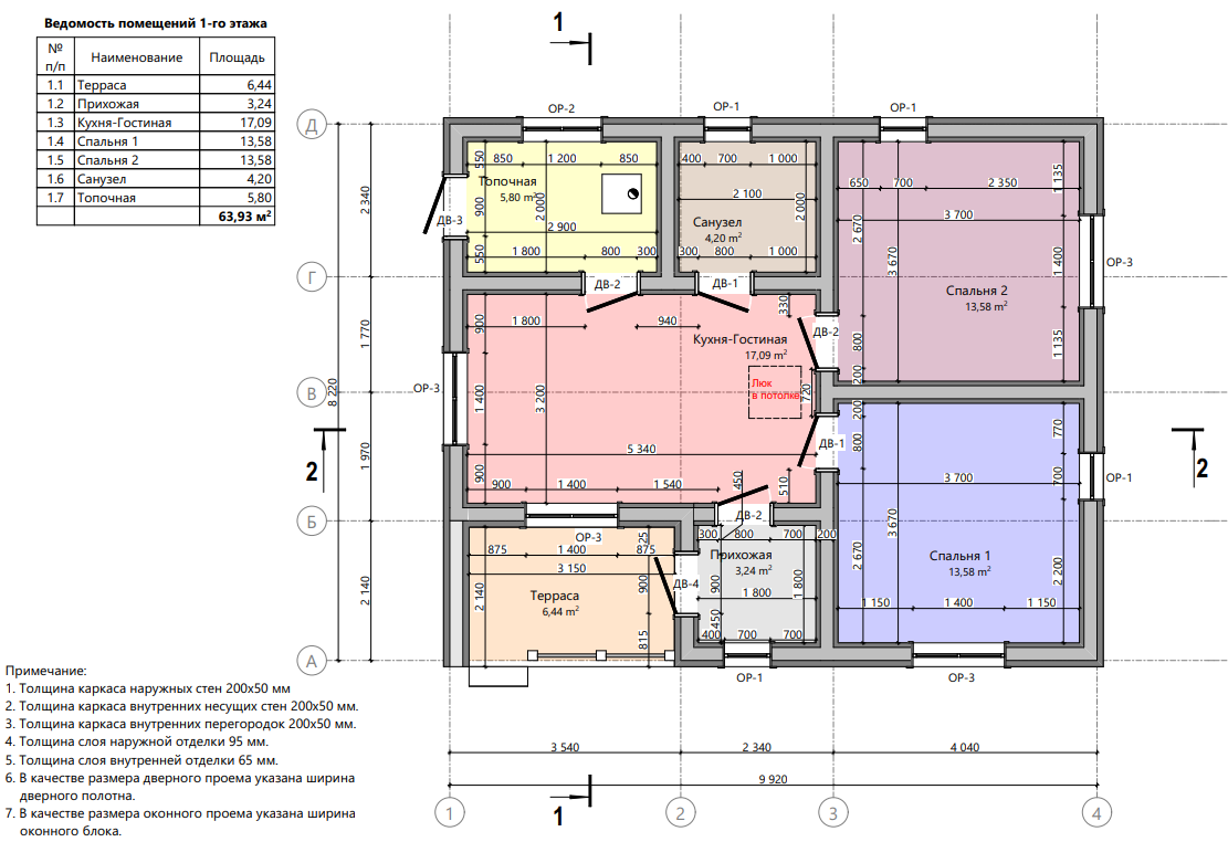
В состав проекта входит: 1.Конструктивный раздел 2.Распил пиломатериалов 3. Визуализация проекта 4. 3d модель в формате bimx 5.Конструктив УШП Данный проект был спроектирован для постоянного, круглогодичного использования помещения в Калужской области. Комфортная и уютная баня, отлично подойдёт как доп строение к основному дому, а также как гостевой домик. В проекте реализован фундамент УШП, несколько спален и сауна. Ориентировочная стоимость дома 3 900 000.

Характеристики

Категория: Проекты одноэтажных домов Площадь: до 100 м2 Этажность: одноэтажные Артикул: 20АК46-6,0х8,0-48
8 000 ₽
Купить проект

Нужна помощь?

Наши менеджеры всегда готовы ответить на ваши вопросы:

info@ecodom-project.ru

Рабочее время: Пн-Пт с 9:00 до 18:00