Интересный проект дома 6,5х9,0-97 м²

Артикул: 20ДМ06.00-МС-6,5х9,0-97 Площадь: до 100 м2 Этажей: двухэтажные
14 800 ₽

Описание проекта

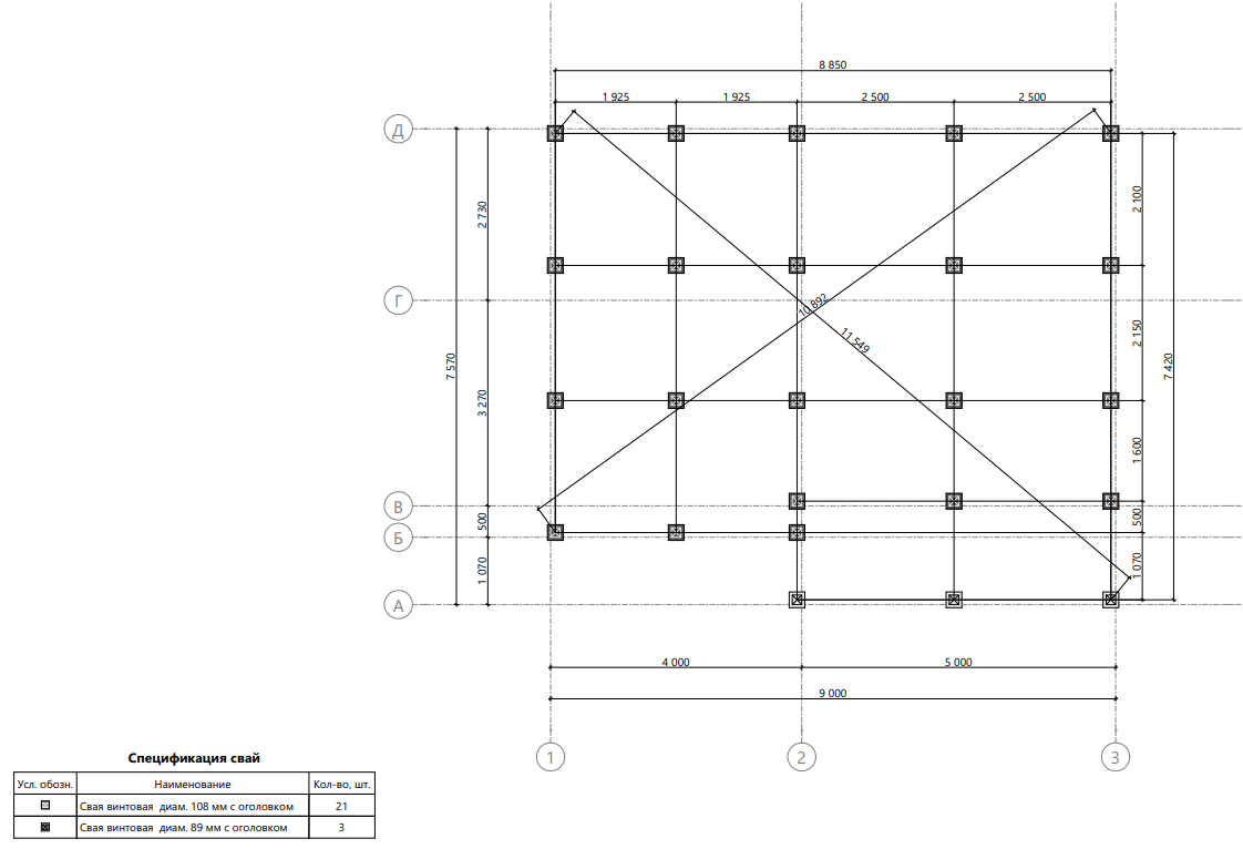
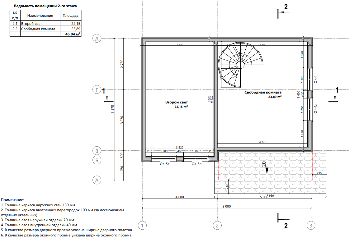
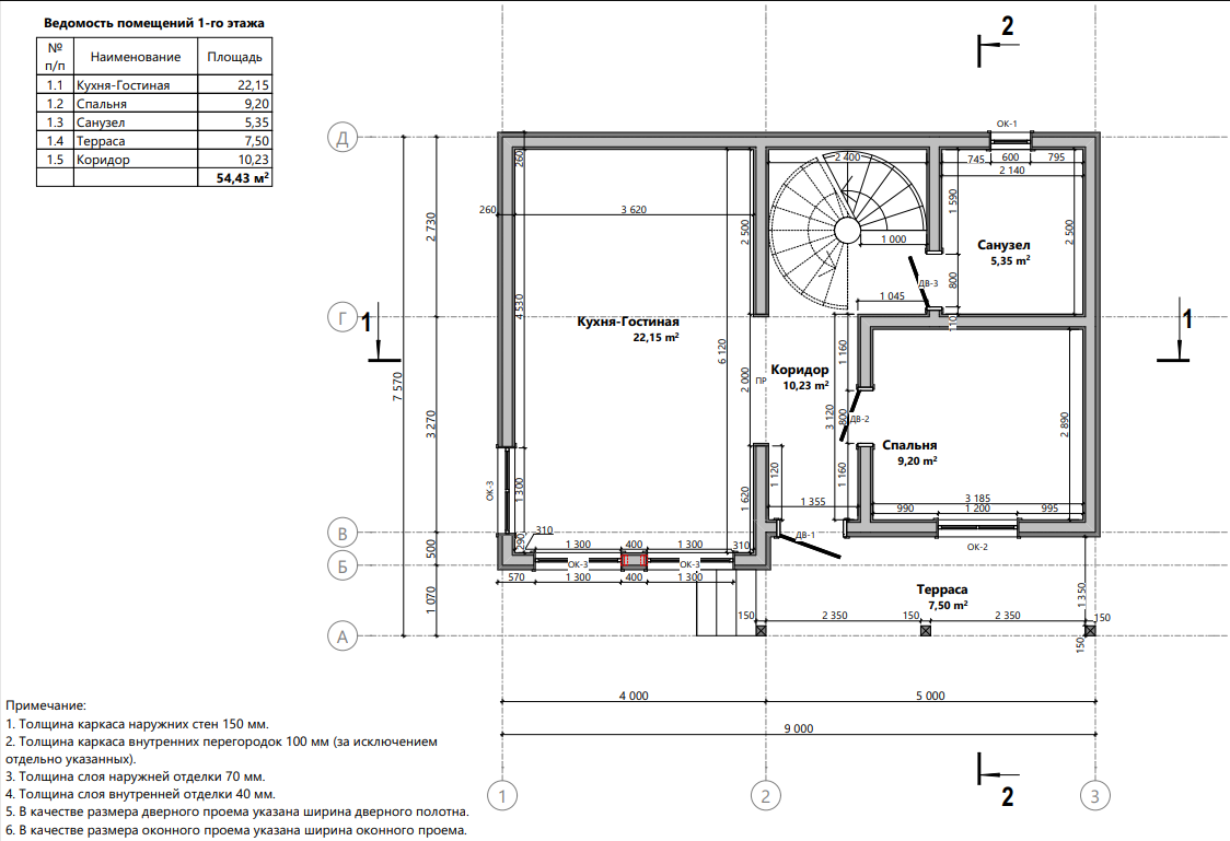
В состав проекта входит: 1.Конструктивный раздел 2.Распил пиломатериалов 3. Визуализация проекта 4. 3d модель в формате bimx Данный проект был спроектирован для постоянного, круглогодичного проживания в Челябинской области. Комфортный и уютный, бюджетный дом, отлично подойдёт для большой семьи. В проекте реализованы мансардные окна, панорамное остекление, второй свет и терраса. Ориентировочная стоимость дома 3 300 000.

Характеристики

Категория: Проекты двухэтажных домов Площадь: до 100 м2 Этажность: двухэтажные Артикул: 20ДМ06.00-МС-6,5х9,0-97
14 800 ₽
Купить проект

Нужна помощь?

Наши менеджеры всегда готовы ответить на ваши вопросы:

info@ecodom-project.ru

Рабочее время: Пн-Пт с 9:00 до 18:00