Проект загородного дома 6,0х9,0-104 м²

Артикул: 20УК01.01.-МС-6,0Х9,0-104 Площадь: от 100 м2 до 200 м2 Этажей: двухэтажные
15 600 ₽

Описание проекта

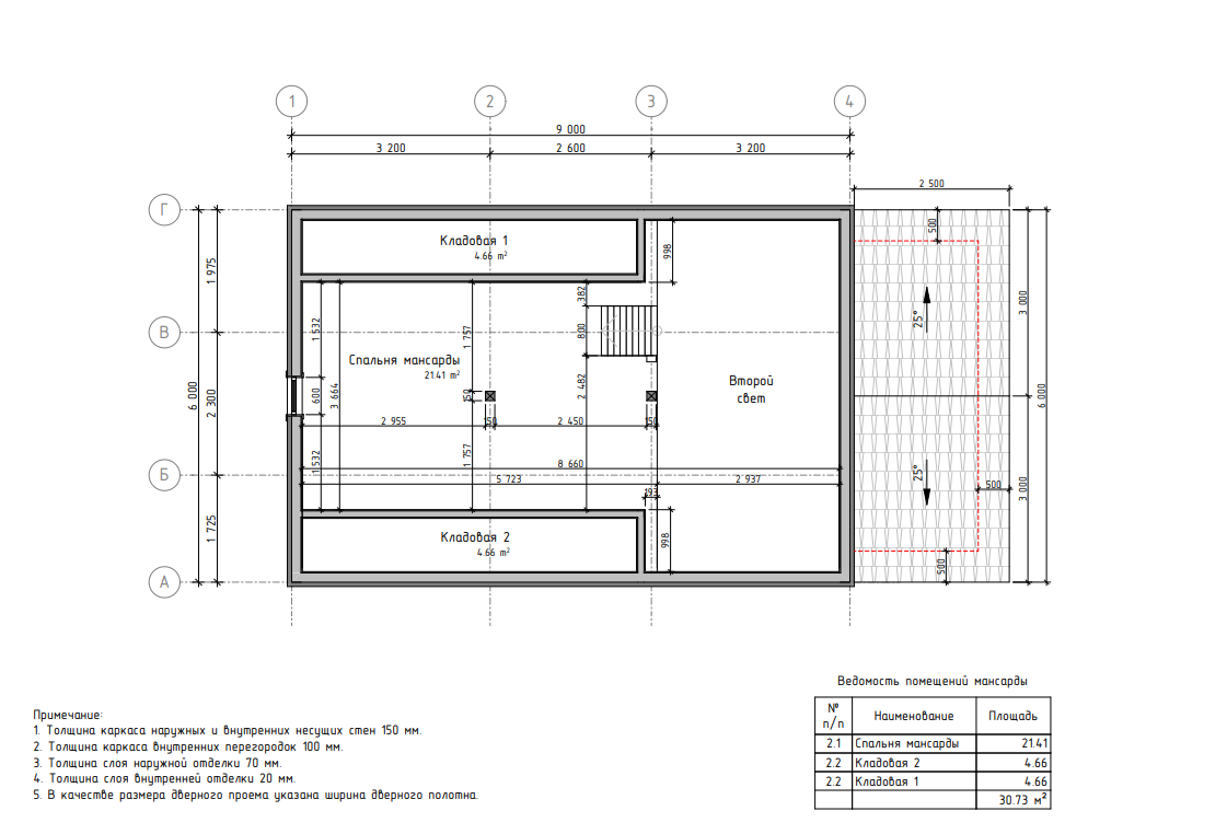
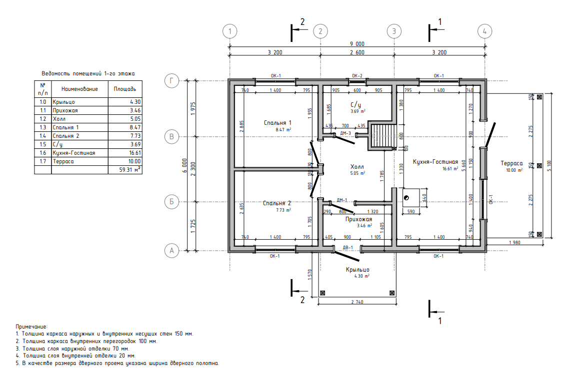
В состав проекта входит: 1.Конструктивный раздел 2.Распил пиломатериалов 3. Визуализация проекта 4. 3d модель в формате bimx Данный проект был спроектирован для постоянного, круглогодичного проживания в Республике Крым. Комфортный и уютный, бюджетный дом, отлично подойдёт для большой семьи. В проекте реализованы мансардные окна, второй свет и терраса. Ориентировочная стоимость дома 4 000 000.

Характеристики

Категория: Проекты двухэтажных домов Площадь: от 100 м2 до 200 м2 Этажность: двухэтажные Артикул: 20УК01.01.-МС-6,0Х9,0-104
15 600 ₽
Купить проект

Нужна помощь?

Наши менеджеры всегда готовы ответить на ваши вопросы:

info@ecodom-project.ru

Рабочее время: Пн-Пт с 9:00 до 18:00