Проект Каркасного дома в стиле Барн 9,8х18,9-192 м²

Артикул: 20АК33-9,8х18,9-192 Площадь: от 100 м2 до 200 м2 Этажей: одноэтажные
19 800 ₽

Описание проекта

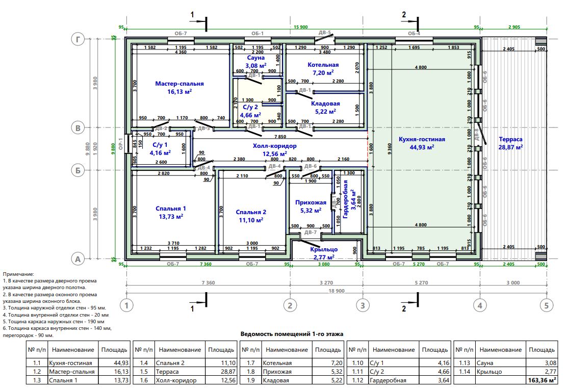
В состав проекта входит: 1.Конструктивный раздел 2.Распил пиломатериалов 3. Визуализация проекта 4. 3d модель в формате bimx 5.Конструктив УШП Данный проект был спроектирован для постоянного, круглогодичного проживания в Астраханской области. Фундамент Утеплённая Шведская плита. Популярный и стильный дом типа БарнХаус, панорамное остекление, огромная терраса, Сауна, большая жилая площадь, отличное решение для большой семьи. Ориентировочная стоимость дома 5 500 000.

Характеристики

Категория: Проекты в стиле "Барнхаус";Проекты одноэтажных домов" Площадь: от 100 м2 до 200 м2 Этажность: одноэтажные Артикул: 20АК33-9,8х18,9-192
19 800 ₽
Купить проект

Нужна помощь?

Наши менеджеры всегда готовы ответить на ваши вопросы:

info@ecodom-project.ru

Рабочее время: Пн-Пт с 9:00 до 18:00