Готовый проект дома 10,2х14,2-145 м²

Артикул: 20АК32-10,2х14,2-145 Площадь: от 100 м2 до 200 м2 Этажей: одноэтажные
24 450 ₽

Описание проекта

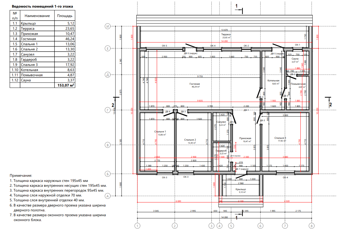
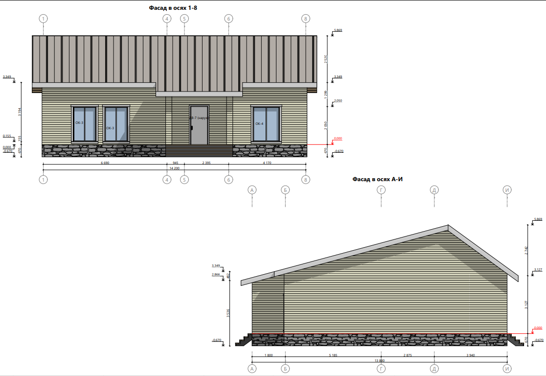
В состав проекта входит: 1.Конструктивный раздел 2.Распил пиломатериалов 3. Визуализация проекта 4. 3d модель в формате bimx Данный проект был спроектирован для постоянного, круглогодичного проживания в Московской области. Комфортный и уютный, бюджетный дом, отлично подойдёт для постоянного проживания большой семьёй. В проекте реализовано Панорамное остекление и#nbsp; Сауна, что является отличным дополнением для загородного дома. Ориентировочная стоимость дома 3 600 000.

Характеристики

Категория: Проекты одноэтажных домов Площадь: от 100 м2 до 200 м2 Этажность: одноэтажные Артикул: 20АК32-10,2х14,2-145
24 450 ₽
Купить проект

Нужна помощь?

Наши менеджеры всегда готовы ответить на ваши вопросы:

info@ecodom-project.ru

Рабочее время: Пн-Пт с 9:00 до 18:00