Проект загородного дома в стиле Барн 6,4х7,3-71 м²

Артикул: 20АК42-6,4х7,3-71 Площадь: до 100 м2 Этажей: одноэтажные
10 600 ₽

Описание проекта

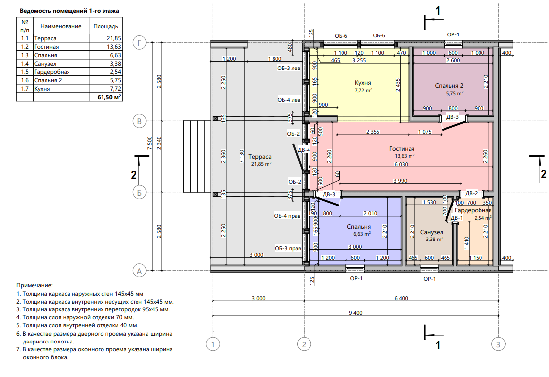
В состав проекта входит: 1.Конструктивный раздел 2.Распил пиломатериалов 3. Визуализация проекта 4. 3d модель в формате bimx Данный проект был спроектирован для постоянного, круглогодичного проживания в Астраханской области. Популярный и стильный дом типа БарнХаус, панорамное остекление, терраса, большая жилая площадь, отличное решение для большой семьи. Ориентировочная стоимость дома 4 500 000.

Характеристики

Категория: Проекты в стиле "Барнхаус";Проекты одноэтажных домов" Площадь: до 100 м2 Этажность: одноэтажные Артикул: 20АК42-6,4х7,3-71
10 600 ₽
Купить проект

Нужна помощь?

Наши менеджеры всегда готовы ответить на ваши вопросы:

info@ecodom-project.ru

Рабочее время: Пн-Пт с 9:00 до 18:00