Проект Каркасного дома 10,0х11,0-94 м²

Артикул: 20АК45-10,0 х 11,0-94 Площадь: до 100 м2 Этажей: одноэтажные
14 000 ₽

Описание проекта

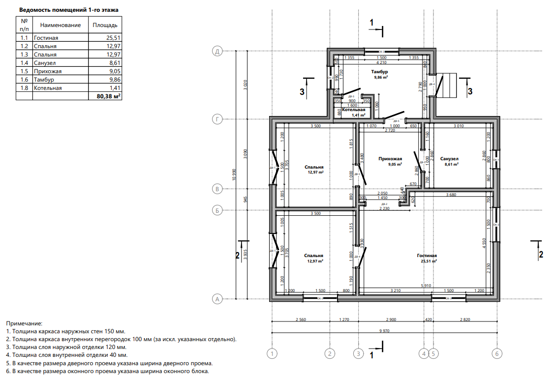
В состав проекта входит: 1.Конструктивный раздел 2.Распил пиломатериалов 3. Визуализация проекта 4. 3d модель в формате bimx Данный проект был спроектирован для постоянного, круглогодичного проживания в Московской области. Комфортный и уютный, бюджетный дом, отлично подойдёт для небольшой семьи, как гостевой дом или для сдачи в аренду. Ориентировочная стоимость дома 2 600 000.

Характеристики

Категория: Проекты одноэтажных домов Площадь: до 100 м2 Этажность: одноэтажные Артикул: 20АК45-10,0 х 11,0-94
14 000 ₽
Купить проект

Нужна помощь?

Наши менеджеры всегда готовы ответить на ваши вопросы:

info@ecodom-project.ru

Рабочее время: Пн-Пт с 9:00 до 18:00