Проект загородного дома с УШП 8.2х9.9-82м²

Артикул: 20АК46.00-ОП-8.2x9.9-82 Площадь: до 100 м2 Этажей: одноэтажные
12 300 ₽

Описание проекта

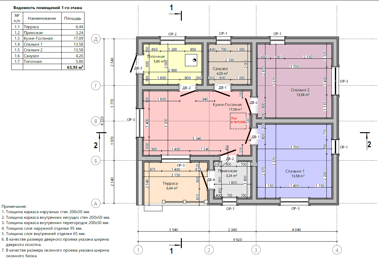
В состав проекта входит: 1.Конструктивный раздел 2.Распил пиломатериалов 3. Визуализация проекта 4. 3d модель в формате bimx 5.конструктив УШП Данный проект был спроектирован для постоянного, круглогодичного проживания в Калужской области. Комфортный и уютный, бюджетный дом с террасой, отлично подойдёт для небольшой семьи, как гостевой дом или для сдачи в аренду. В проекте реализован фундамент Утеплённая Шведская плита, что даёт возможность строить дом в местах с очень холодным климатом. Ориентировочная стоимость дома 2 800 000.

Характеристики

Категория: Проекты одноэтажных домов Площадь: до 100 м2 Этажность: одноэтажные Артикул: 20АК46.00-ОП-8.2x9.9-82
12 300 ₽
Купить проект

Нужна помощь?

Наши менеджеры всегда готовы ответить на ваши вопросы:

info@ecodom-project.ru

Рабочее время: Пн-Пт с 9:00 до 18:00