Проект дома для большой семьи 8,4х8,9-168 м²

Артикул: 20КП01-8,4х8,9-168 Площадь: от 100 м2 до 200 м2 Этажей: двухэтажные
25 200 ₽

Описание проекта

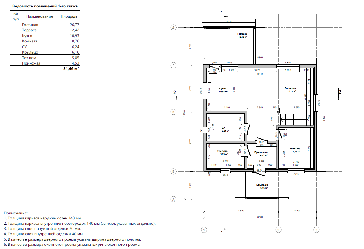
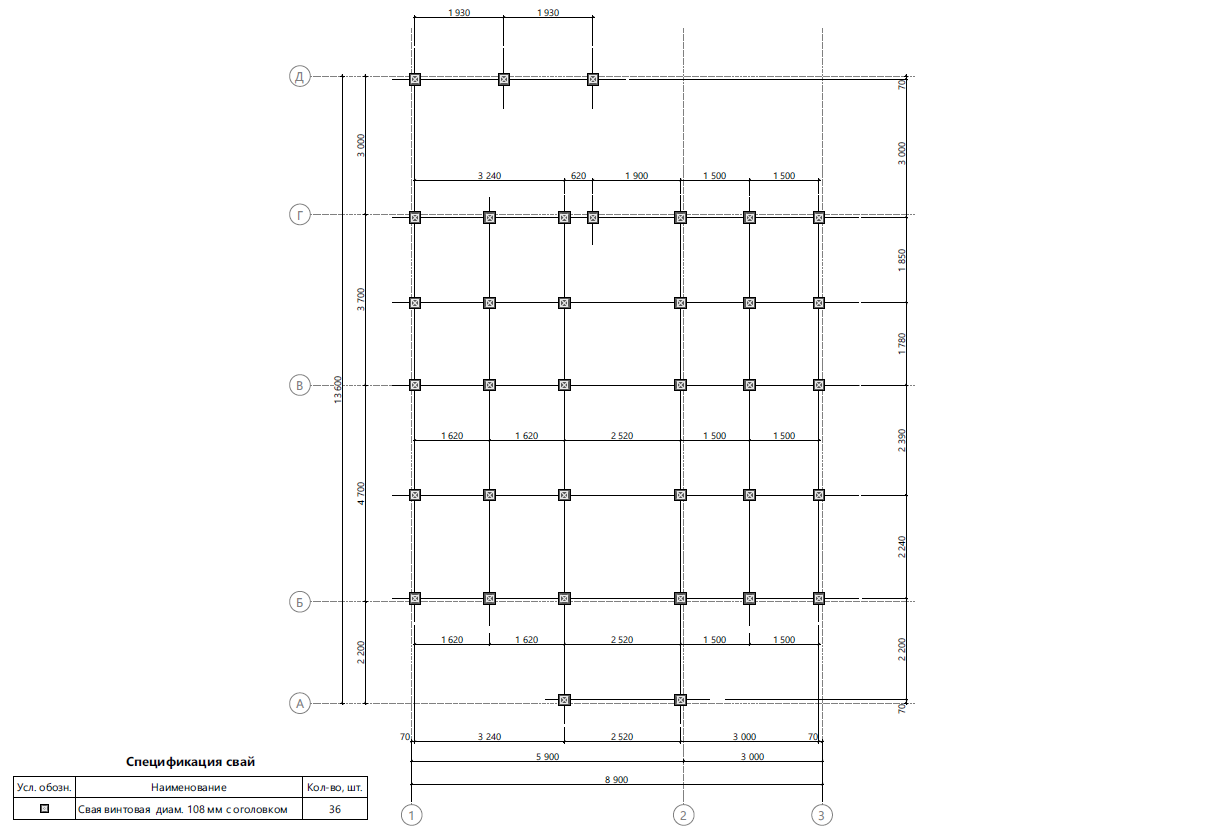
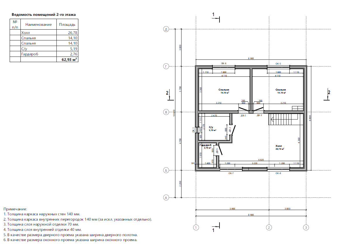
В состав проекта входит: 1.Конструктивный раздел 2.Распил пиломатериалов 3. Визуализация проекта 4. 3d модель в формате bimx 5.Смета Данный проект был спроектирован для постоянного, круглогодичного проживания в Московской области. Большой, просторный двухэтажный дом. Несколько спален, два санузла, большая гостиная совмещённая с кухней, отличное решение для большой семьи. Ориентировочная стоимость дома 5 000 000.

Характеристики

Категория: Проекты двухэтажных домов Площадь: от 100 м2 до 200 м2 Этажность: двухэтажные Артикул: 20КП01-8,4х8,9-168
25 200 ₽
Купить проект

Нужна помощь?

Наши менеджеры всегда готовы ответить на ваши вопросы:

info@ecodom-project.ru

Рабочее время: Пн-Пт с 9:00 до 18:00