Бюджетный проект загородного дома 6,0х8,0-48 м²

Артикул: 20АК08-6,0х8,0-48 Площадь: до 100 м2 Этажей: одноэтажные
7 200 ₽

Описание проекта

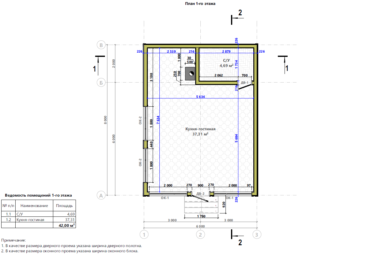
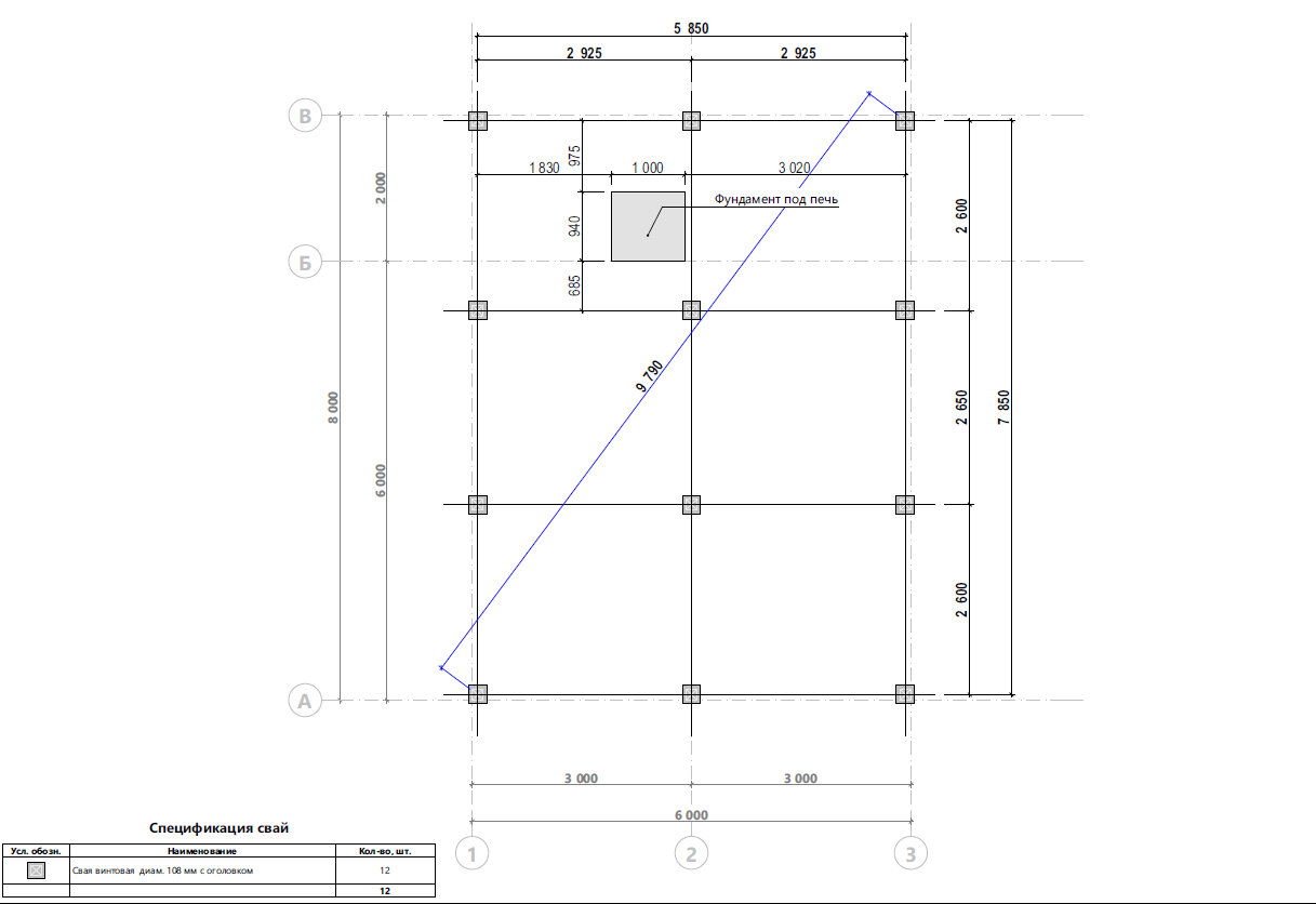
В состав проекта входит: 1.Конструктивный раздел 2.Распил пиломатериалов 3. Визуализация проекта 4. 3d модель в формате bimx Данный проект был спроектирован для постоянного, круглогодичного проживания. Уютный, бюджетный дом , со свободной планировкой, большая площадь кухня-гостиной, отличная альтернатива квартире, так же отлично подойдёт как гостевой дом или в качестве инвестиции для сдачи в аренду. Ориентировочная стоимость дома 1 500 000.

Характеристики

Категория: Проекты одноэтажных домов Площадь: до 100 м2 Этажность: одноэтажные Артикул: 20АК08-6,0х8,0-48
7 200 ₽
Купить проект

Нужна помощь?

Наши менеджеры всегда готовы ответить на ваши вопросы:

info@ecodom-project.ru

Рабочее время: Пн-Пт с 9:00 до 18:00