Проект БарнХаус Карелия 22АК02-МП-5,0х9,5-80 м²

Артикул: 22АК02-МП-5,0х9,5-80 Площадь: до 100 м2 Этажей: двухэтажные
12 000 ₽

Описание проекта

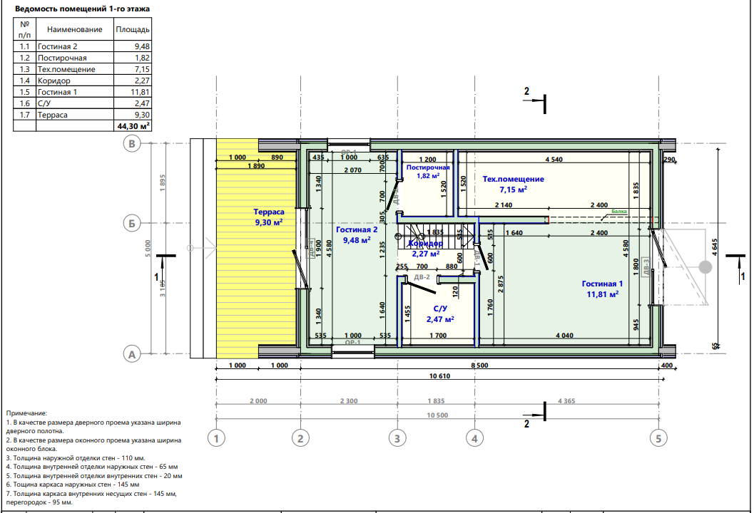
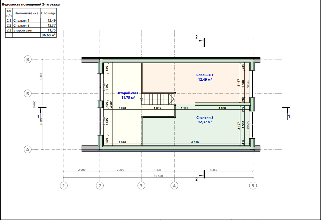
В состав проекта входит: 1.Конструктивный раздел 2.Распил пиломатериалов 3. Визуализация проекта 4. 3d модель в формате bimx Данный проект был спроектирован для постоянного, круглогодичного проживания Кондопожском районе республика Карелия, в данном проекте были учтены сильные морозы и обильные снегопады зимой. Отличный дом как для постоянного проживания, так и для выездов на выходных. Также данный проект часто используют в части инвестиции для продажи или сдачи дома в аренду. Ориентировочная стоимость дома 3 000 000.

Характеристики

Категория: Проекты в стиле "Барнхаус" Площадь: до 100 м2 Этажность: двухэтажные Артикул: 22АК02-МП-5,0х9,5-80
12 000 ₽
Купить проект

Нужна помощь?

Наши менеджеры всегда готовы ответить на ваши вопросы:

info@ecodom-project.ru

Рабочее время: Пн-Пт с 9:00 до 18:00