Проект Одноэтажного загородного дома 9,3х13,0-112 м²

Артикул: 21АК10-ОС-9,3х13,0-112 Площадь: от 100 м2 до 200 м2 Этажей: одноэтажные
16 800 ₽

Описание проекта

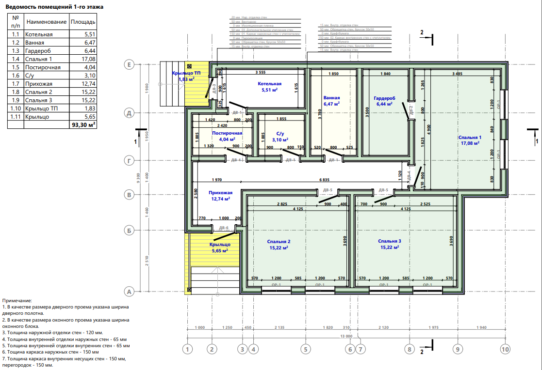
В состав проекта входит: 1.Конструктивный раздел 2.Распил пиломатериалов 3. Визуализация проекта 4. 3d модель в формате bimx Популярный загородный дом, был спроектирован для постоянного проживания в Челябинской области. Много спален, панорамные окна во всём доме. Отличная альтернатива однокомнатной квартире, свой бюджетный дом на открытом воздухе, за городом. Ориентировочная стоимость дома 3 400 000.

Характеристики

Категория: Проекты одноэтажных домов Площадь: от 100 м2 до 200 м2 Этажность: одноэтажные Артикул: 21АК10-ОС-9,3х13,0-112
16 800 ₽
Купить проект

Нужна помощь?

Наши менеджеры всегда готовы ответить на ваши вопросы:

info@ecodom-project.ru

Рабочее время: Пн-Пт с 9:00 до 18:00