Проект дома в стиле Барн 7,2х12,0-237 м²

Артикул: 21КП04 -7,2х12,0-237 Площадь: от 200 м2 Этажей: двухэтажные
35 550 ₽

Описание проекта

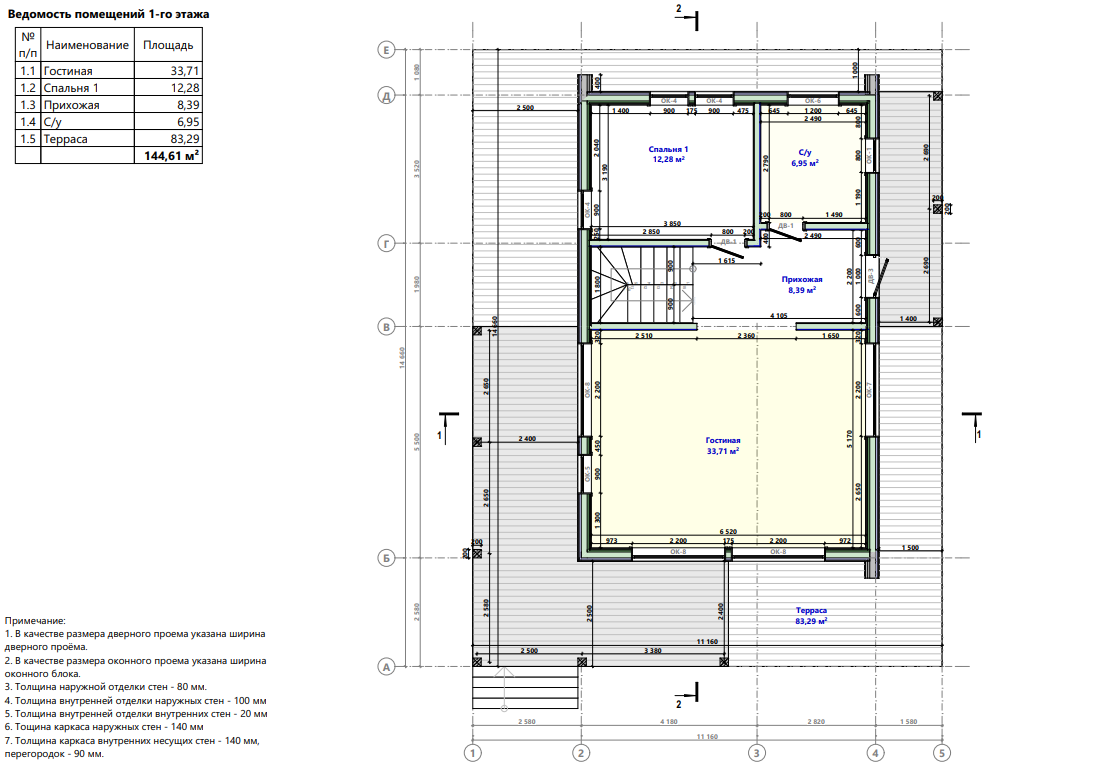
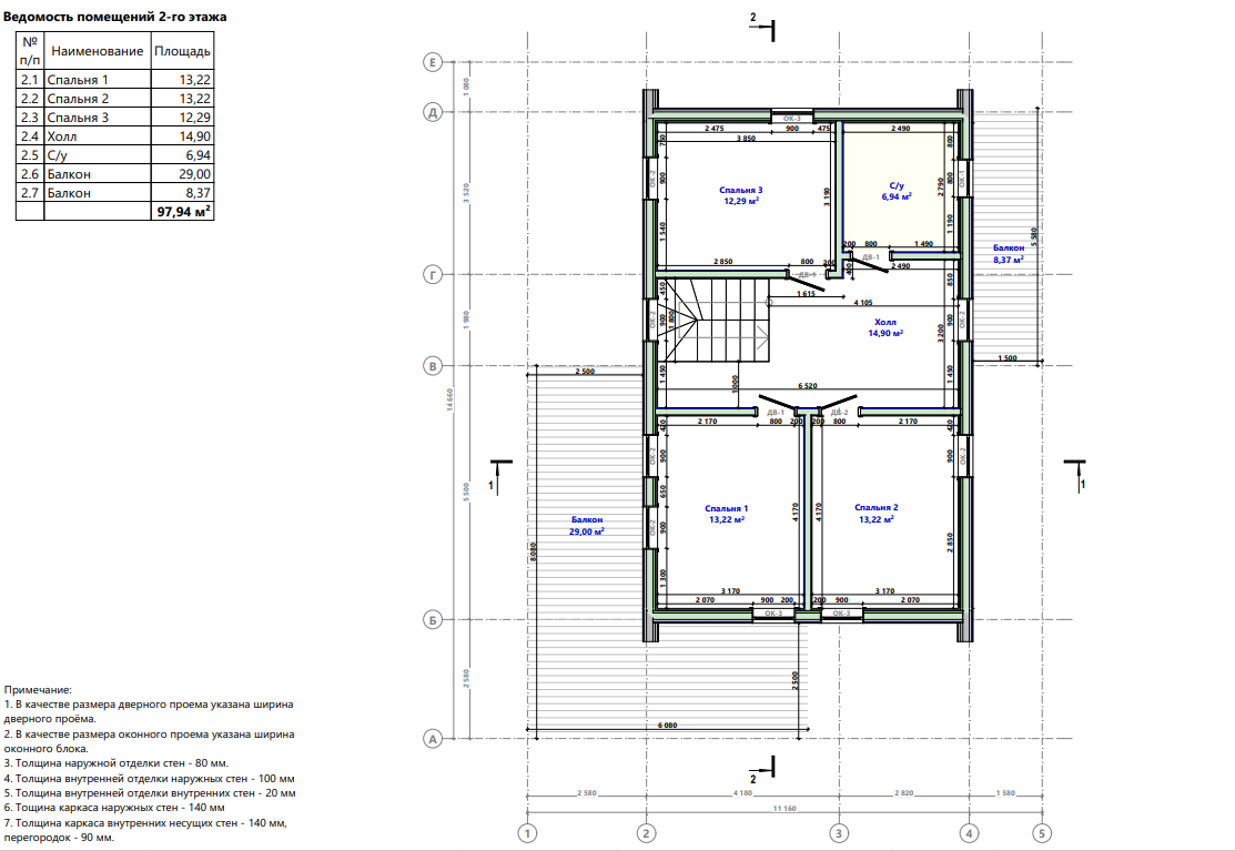
В состав проекта входит: 1.Конструктивный раздел 2.Распил пиломатериалов 3. Визуализация проекта 4. 3d модель в формате bimx Современный стильный проект двухэтажного загородного дома в стиле Барн, был разработан для постоянного проживания в Московской области. Большое количество спален, большое панорамное остекление, просторная гостинная, терраса, отличный вариант, для проживания большой семьёй за городом. Также, на 2-м этаже реализованы мансардные окна. Ориентировочная стоимость дома 5 200 000.

Характеристики

Категория: Проекты в стиле "Барнхаус";Проекты двухэтажных домов" Площадь: от 200 м2 Этажность: двухэтажные Артикул: 21КП04 -7,2х12,0-237
35 550 ₽
Купить проект

Нужна помощь?

Наши менеджеры всегда готовы ответить на ваши вопросы:

info@ecodom-project.ru

Рабочее время: Пн-Пт с 9:00 до 18:00