Проект Уютного загородного дома 7,0х10,0-90 м²

Артикул: 21КП07-ОС-7,0х10,0-90 Площадь: до 100 м2 Этажей: одноэтажные
13 500 ₽

Описание проекта

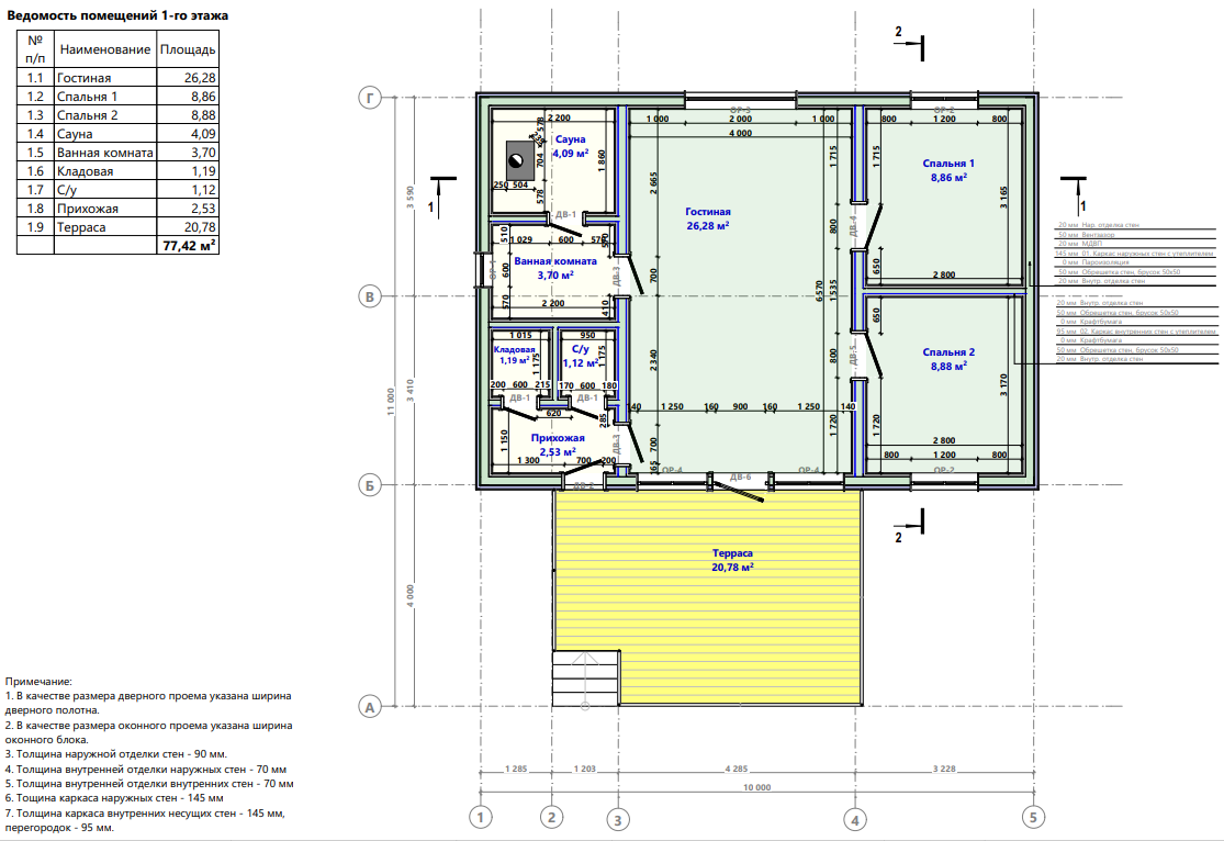
В состав проекта входит: 1.Конструктивный раздел 2.Распил пиломатериалов 3. Визуализация проекта 4. 3d модель в формате bimx Современный комфортабельный дом, отлично подойдёт как гостевой дом на вашем участке или для выезда за город на отдых, рассчитан на постоянное проживание, поэтому также подойдёт для маленькой семьи или в качестве инвестиций, сдачи в аренду. В проекте реализована сауна, что будет плюсом в любом случае. Был разработан для постоянного проживания в Московской области. Две спальни, большая гостинная, отличная альтернатива квартире в городе. Ориентировочная стоимость дома 3 000 000.

Характеристики

Категория: Проекты одноэтажных домов Площадь: до 100 м2 Этажность: одноэтажные Артикул: 21КП07-ОС-7,0х10,0-90
13 500 ₽
Купить проект

Нужна помощь?

Наши менеджеры всегда готовы ответить на ваши вопросы:

info@ecodom-project.ru

Рабочее время: Пн-Пт с 9:00 до 18:00