Проект Двухэтажного, загородного дома БарнХаус 6,2х10,0-123 м²

Артикул: 21КП01 - МС-6,0х10,0-123 Площадь: от 100 м2 до 200 м2 Этажей: двухэтажные
18 450 ₽

Описание проекта

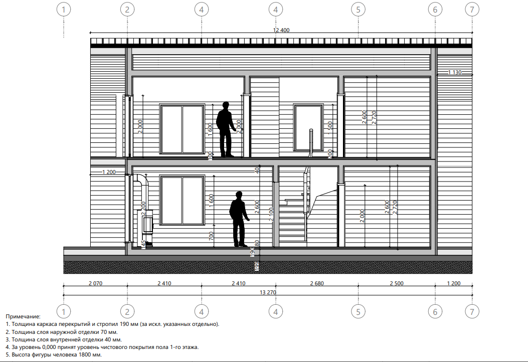
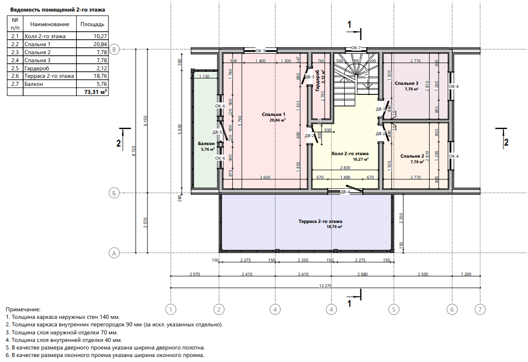
В состав проекта входит: 1.Конструктивный раздел 2.Распил пиломатериалов 3. Визуализация проекта 4. 3d модель в формате bimx Современный стильный проект загородного дома в стиле Барн, был разработан для постоянного проживания в Московской области. Большое количество спален, большое панорамное остекление, просторная гостинная, терраса, отличный вариант, для проживания большой семьёй за городом. Ориентировочная стоимость дома 5 200 000.

Характеристики

Категория: Проекты в стиле "Барнхаус";Проекты двухэтажных домов" Площадь: от 100 м2 до 200 м2 Этажность: двухэтажные Артикул: 21КП01 - МС-6,0х10,0-123
18 450 ₽
Купить проект

Нужна помощь?

Наши менеджеры всегда готовы ответить на ваши вопросы:

info@ecodom-project.ru

Рабочее время: Пн-Пт с 9:00 до 18:00