Проект Стильного современного дома 11,2х18,6-208 м²

Артикул: 21КП10 - ОП-11,25х18,6-208 Площадь: от 200 м2 Этажей: одноэтажные
17 700 ₽

Описание проекта

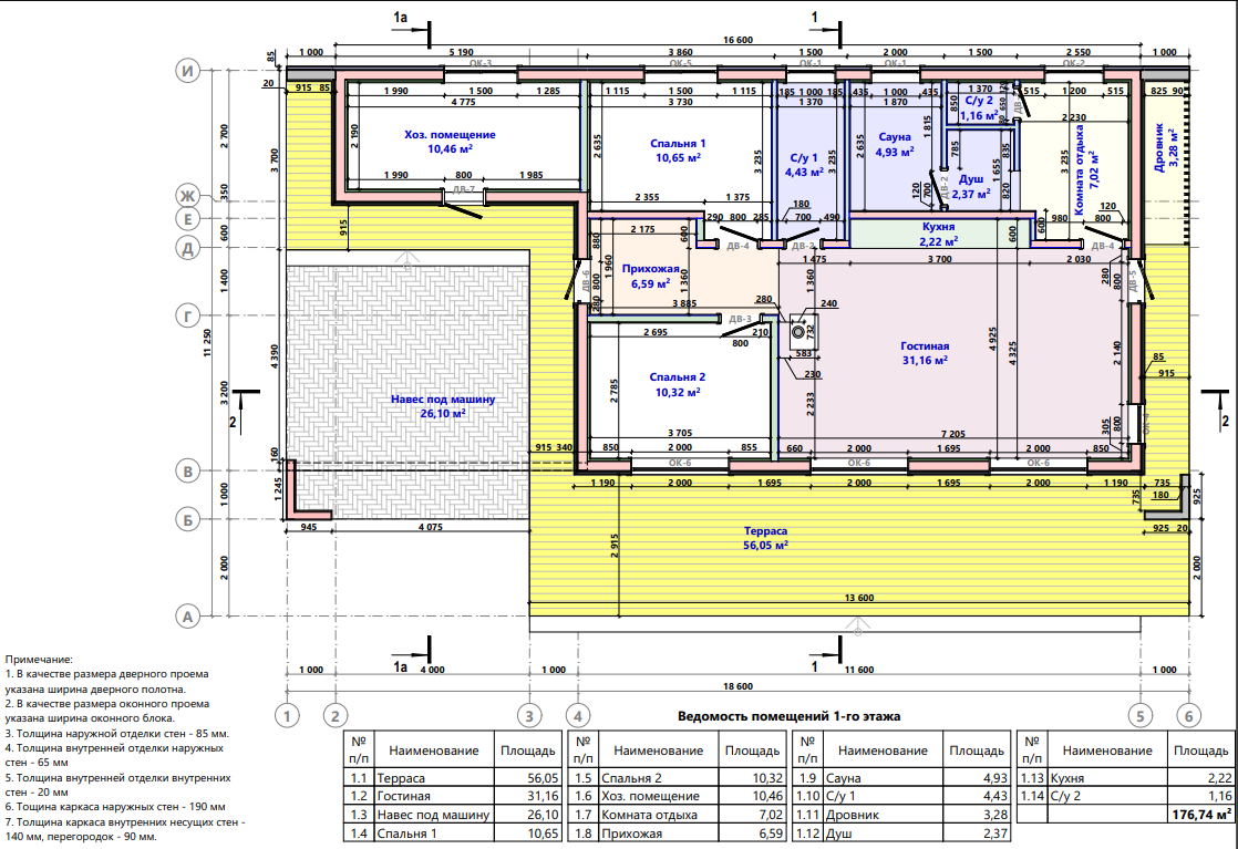
В состав проекта входит: 1.Конструктивный раздел 2.Распил пиломатериалов 3. Визуализация проекта 4. 3d модель в формате bimx Современный стильный проект загородного дома с плоской крышей, был разработан для постоянного проживания в Московской области. Большое количество спален, большое панорамное остекление, просторная гостинная, терраса, отличный вариант, для проживания большой семьёй за городом. В проекте реализована сауна, что является хорошим дополнением для жизни за городом. Ориентировочная стоимость дома 4 200 000.

Характеристики

Категория: Проекты одноэтажных домов Площадь: от 200 м2 Этажность: одноэтажные Артикул: 21КП10 - ОП-11,25х18,6-208
17 700 ₽
Купить проект

Нужна помощь?

Наши менеджеры всегда готовы ответить на ваши вопросы:

info@ecodom-project.ru

Рабочее время: Пн-Пт с 9:00 до 18:00