Проект дома 7,0х15,0-105 м²

Артикул: 20КПД01-7,0х15,0-105 Площадь: от 100 м2 до 200 м2 Этажей: одноэтажные
15 000 ₽

Описание проекта

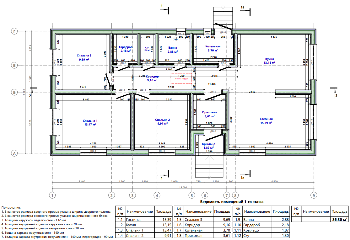
В состав проекта входит: 1.Конструктивный раздел 2.Распил пиломатериалов 3. Визуализация проекта 4. 3d модель в формате bimx Проект загородного дома был разработан для постоянного проживания в Тверской области. Большое количество спален, просторная гостинная, отличный вариант, для проживания большой семьёй за городом. Реализован холодный чердак, для хранения вещей. Ориентировочная стоимость дома 3 200 000.

Характеристики

Категория: Проекты одноэтажных домов Площадь: от 100 м2 до 200 м2 Этажность: одноэтажные Артикул: 20КПД01-7,0х15,0-105
15 000 ₽
Купить проект

Нужна помощь?

Наши менеджеры всегда готовы ответить на ваши вопросы:

info@ecodom-project.ru

Рабочее время: Пн-Пт с 9:00 до 18:00