Проект загородного дома 8,3х12,8-100 м²

Артикул: 21АК13-8,3х12,8-100 Площадь: от 100 м2 до 200 м2 Этажей: одноэтажные
15 000 ₽

Описание проекта

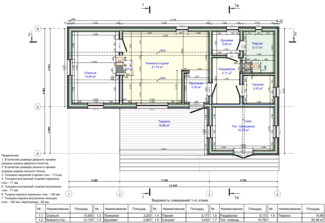
В состав проекта входит: 1.Конструктивный раздел 2.Распил пиломатериалов 3. Визуализация проекта 4. 3d модель в формате bimx Эксклюзивный проект загородного дома для в Ленинградской области. Отлично подойдёт для гостевого домика на вашем участке. В проекте реализована большая терраса и вместительная баня на дровах. По мимо этого дом имеет большую гостевую, спальню и тех помещение для бани, который может использоваться и для основного дома.#nbsp; Ориентировочная стоимость дома 2 900 000.

Характеристики

Категория: Проекты одноэтажных домов Площадь: от 100 м2 до 200 м2 Этажность: одноэтажные Артикул: 21АК13-8,3х12,8-100
15 000 ₽
Купить проект

Нужна помощь?

Наши менеджеры всегда готовы ответить на ваши вопросы:

info@ecodom-project.ru

Рабочее время: Пн-Пт с 9:00 до 18:00