Проект Двухэтажного Барн-хауса 8,0х10,0-160 м²

Артикул: 21АК16.00-МС-8,0х10,0-160 Площадь: от 100 м2 до 200 м2 Этажей: двухэтажные
24 000 ₽

Описание проекта

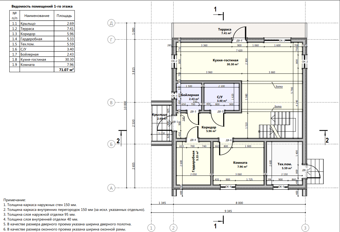
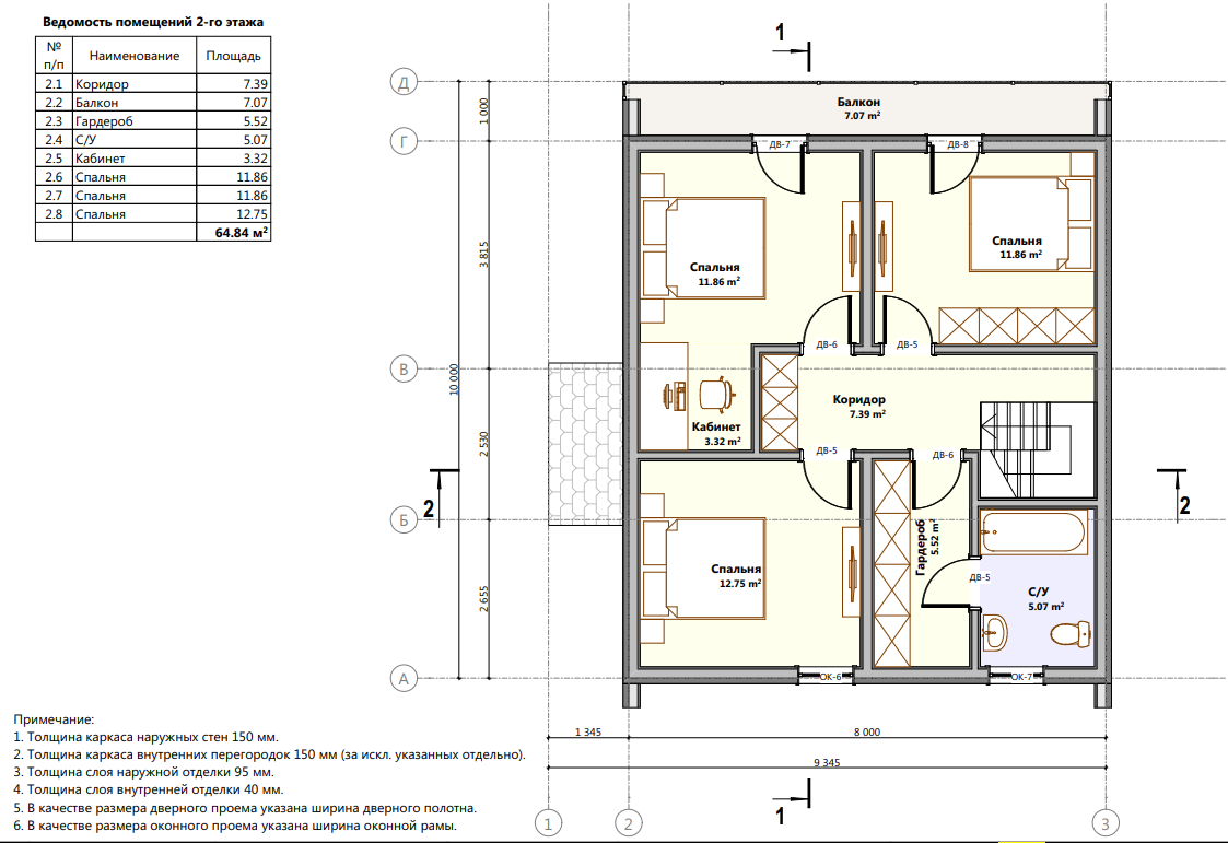
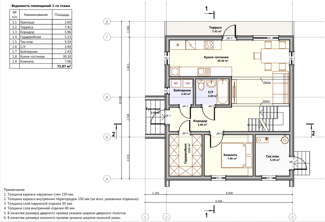
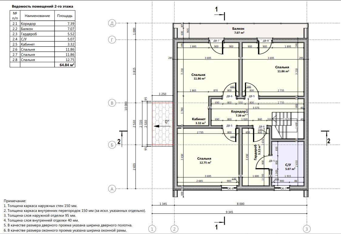
В состав проекта входит: 1.Конструктивный раздел 2.Распил пиломатериалов 3. Визуализация проекта 4. 3d модель в формате bimx Большой, современный дом в стиле Барн. Большая терраса, два этажа большое количество спален и санузлов, отличный дом для большой семьи. Ориентировочная стоимость дома 4 700 000.

Характеристики

Категория: Проекты в стиле "Барнхаус";Проекты двухэтажных домов" Площадь: от 100 м2 до 200 м2 Этажность: двухэтажные Артикул: 21АК16.00-МС-8,0х10,0-160
24 000 ₽
Купить проект

Нужна помощь?

Наши менеджеры всегда готовы ответить на ваши вопросы:

info@ecodom-project.ru

Рабочее время: Пн-Пт с 9:00 до 18:00