Проект Небольшого загородного дома 4,6х11,1-63 м²

Артикул: 21АК20-ОС-4,6х11,1-63 Площадь: до 100 м2 Этажей: двухэтажные
9 450 ₽

Описание проекта

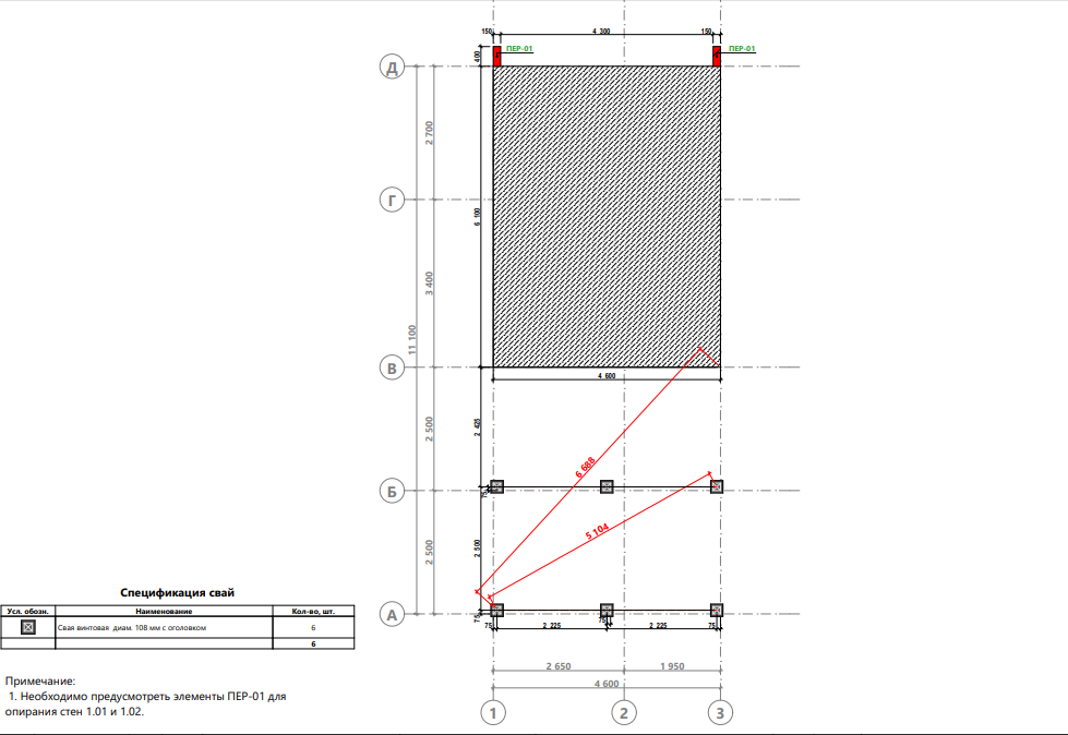
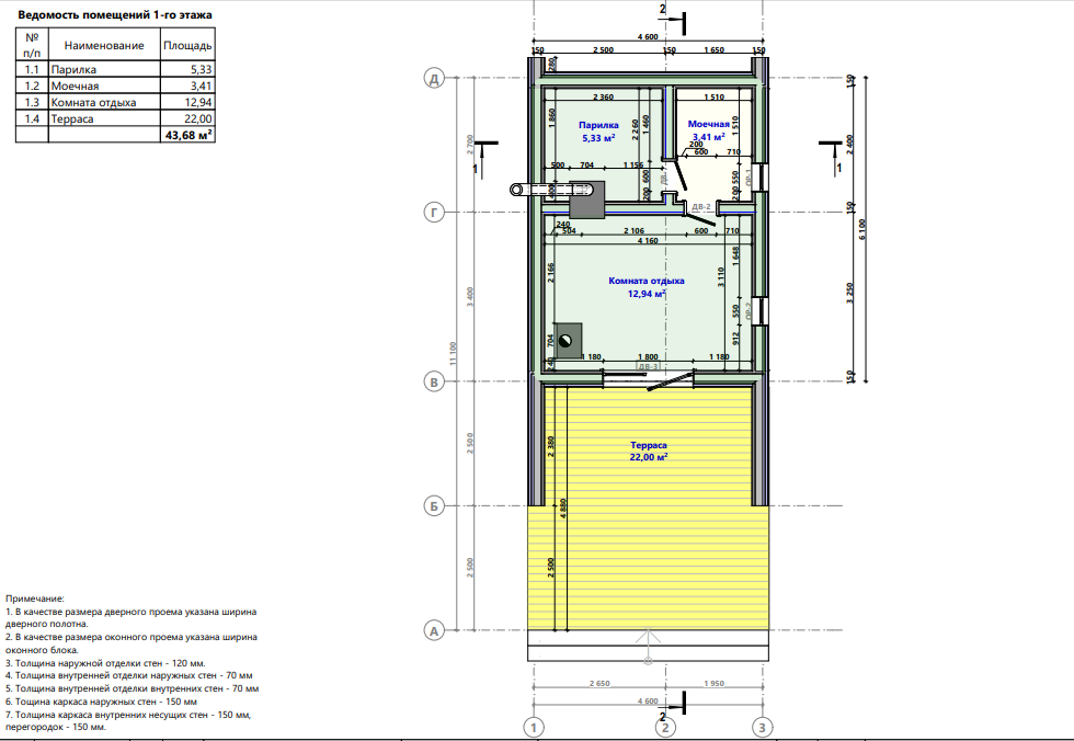
В состав проекта входит: 1.Конструктивный раздел 2.Распил пиломатериалов 3. Визуализация проекта 4. 3d модель в формате bimx Современный дом в стиле Барн. Панорамные окна.#nbsp; Был спроектирован для постоянного проживания в Московской области. Отлично подойдёт для инвестирования, для сдачи в арену, для выезда за город, а также для небольшой семьи. В проекте реализована баня с моечной, мансардная спальня, второй свет. Бюджетный проект дома. Ориентировочная стоимость дома 2 200 000.

Характеристики

Категория: Проекты в стиле "Барнхаус";Проекты двухэтажных домов" Площадь: до 100 м2 Этажность: двухэтажные Артикул: 21АК20-ОС-4,6х11,1-63
9 450 ₽
Купить проект

Нужна помощь?

Наши менеджеры всегда готовы ответить на ваши вопросы:

info@ecodom-project.ru

Рабочее время: Пн-Пт с 9:00 до 18:00