Проект Бани 3,5х10,65-45 м²

Артикул: 21АК26 3,5х10,65-45 Площадь: до 100 м2 Этажей: одноэтажные
6 750 ₽

Описание проекта

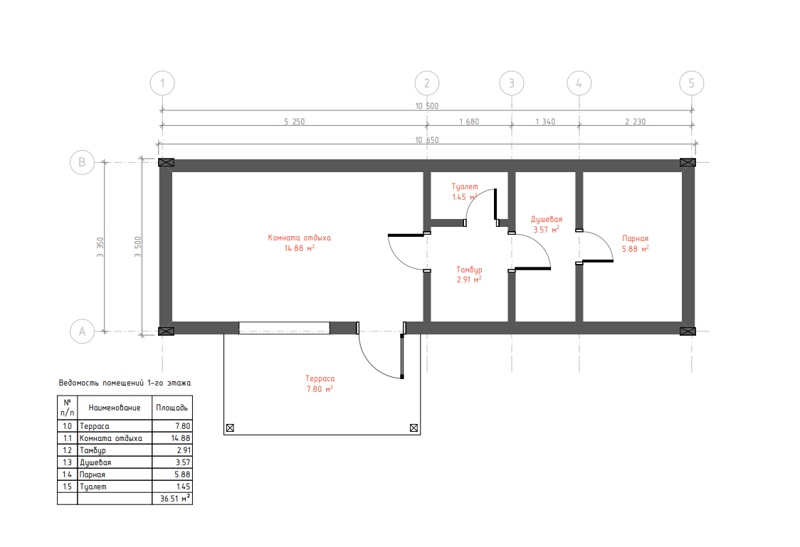
В состав проекта входит: 1.Конструктивный раздел 2.Распил пиломатериалов 3. Визуализация проекта 4. 3d модель в формате bimx Данный проект был спроектирован как дополнительная постройка к основному дому в Ленинградской области. Отличный вариант гостевого домика на вашем участке. Зона отдыха в 15 м2 вполне может служить спальней, после хорошего отдыха. Регулярно посещать свою баню и при этом размещать там гостей, очень удобно. Ориентировочная стоимость дома 2 000 000.

Характеристики

Категория: Проекты одноэтажных домов Площадь: до 100 м2 Этажность: одноэтажные Артикул: 21АК26 3,5х10,65-45
6 750 ₽
Купить проект

Нужна помощь?

Наши менеджеры всегда готовы ответить на ваши вопросы:

info@ecodom-project.ru

Рабочее время: Пн-Пт с 9:00 до 18:00