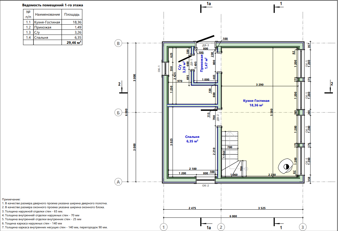
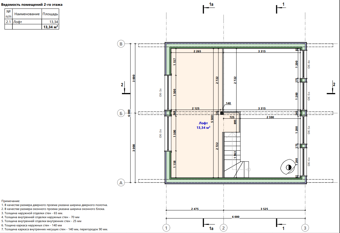
Проект каркасного дома с панорамным остеклением 6,0х6,0-57 м²

Артикул: 22КП01.00-МС-6,0Х6,0-57 Площадь: до 100 м2 Этажей: двухэтажные
23 000 ₽

Описание проекта

В состав проекта входит: 1.Конструктивный раздел 2.Распил пиломатериалов 3. Визуализация проекта 4. 3d модель в формате bimx Данный проект был спроектирован для постоянного, круглогодичного проживания в Московской области. Шикарный дом в панорамными окнами, отлично подойдёт для участка с красивыми видами. Отлично подойдёт для большой семьи. Ориентировочная стоимость дома 3 500 000.

Характеристики

Категория: Проекты двухэтажных домов Площадь: до 100 м2 Этажность: двухэтажные Артикул: 22КП01.00-МС-6,0Х6,0-57
23 000 ₽
Купить проект

Нужна помощь?

Наши менеджеры всегда готовы ответить на ваши вопросы:

info@ecodom-project.ru

Рабочее время: Пн-Пт с 9:00 до 18:00