Проект двухэтажного дома в стиле Барнхаус 11,9х17,2-274 м²

Артикул: 21АКП01.00-11.95х17.20-274 Площадь: от 200 м2 Этажей: двухэтажные
41 000 ₽

Описание проекта

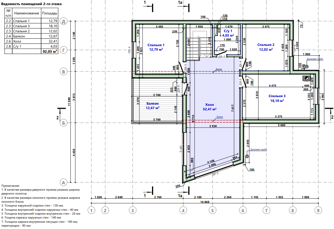
В состав проекта входит: 1.Конструктивный раздел 2.Распил пиломатериалов 3. Визуализация проекта 4. 3d модель в формате bimx Данный проект имеет большую площадь, что подойдёт для постоянного проживания большой семьёй, шикарный двухэтажный загородный дом в современном стиле БарнХаус был спроектирован для постоянного проживания в Московской области. В проекте реализована отапливаемая купель#nbsp; на крытой террасе. Дом в котором есть всё, для хорошего времяпровождения, будет служить вам не одно поколение и радовать вас своим дизайном. Ориентировочная стоимость дома 7 000 000.

Характеристики

Категория: Проекты в стиле "Барнхаус";Проекты двухэтажных домов" Площадь: от 200 м2 Этажность: двухэтажные Артикул: 21АКП01.00-11.95х17.20-274
41 000 ₽
Купить проект

Нужна помощь?

Наши менеджеры всегда готовы ответить на ваши вопросы:

info@ecodom-project.ru

Рабочее время: Пн-Пт с 9:00 до 18:00